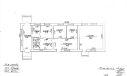
Беларусь г. Орша, ул. Московская 1А корпус 10

 Назначение – административные помещения
Площадь – 94,9 кв.м., объем здания – 438 куб.м.. Год постройки - 1965
Описание конструкции:
Фундамент - бетонный; полы - плитка, дощатые; стены кирпичные; перекрытия – ж/бетонные плиты.
Количество помещений - 5
Вентиляция - естественная
Освещение – естественное, искусственное (электричество)
Электрическое обеспечение –220В

1a10 new 11a10 new 2

Контакты
свяжитесь с нами наиболее удобным способом!

Адрес:

г. Орша, ул. Московская, д. 1А

Для связи:

+375295787874 Viber, WhatsApp
+375295757874 Viber, WhatsApp
+79679889242 Viber, WhatsApp.
depot1.by@gmail.com

Остались вопросы?
Задайте их нам и мы обязательно ответим!


Контакты

depot1.by@gmail.com
+375 29 676 78 74
г. Орша, ул. Московская, д. 1А

Разработка сайта Extrit
© 2022. Использование материалов сайта только с разрешения правообладателя